Технология Timber Frame: Часть 11 - Разновидности металлических соединительных элементов

На родине технологии Timber Frame – в Америке металлические соединительные элементы (коннекторы) выпускаются практически в промышленных масштабах. И разнообразие их на рынке буквально поражает воображение. Поэтому в нашей небольшой публикации мы рассмотрим только некоторые варианты таких соединителей. И сделаем это от простого к сложному.

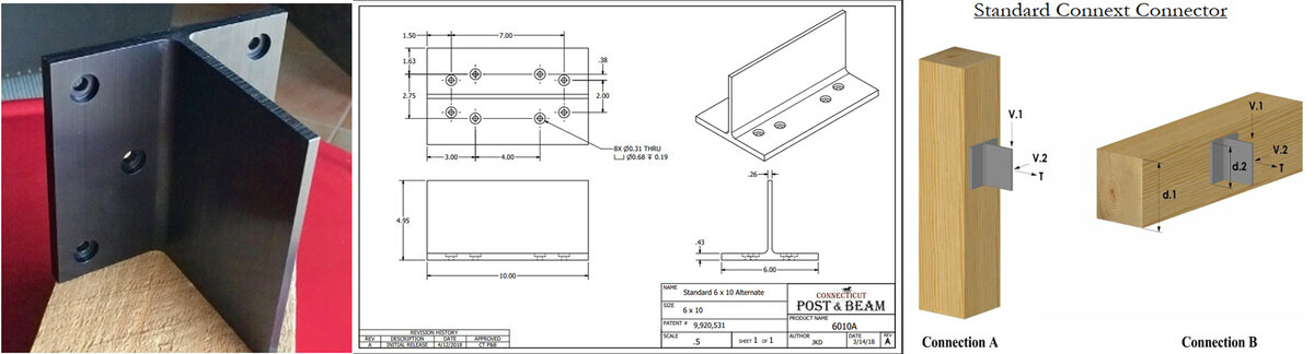
Вариант-1.

В наиболее простом (на наш, естествен, взгляд) случае для соединения предлагается использовать Т-образные соединительные элементы. Выпускаются они в следующих вариантах:

  • коннекторы для крепления стоек-колонн каркаса к «каменному» основанию;
  • коннекторы для соединения двух перпендикулярных элементов» (предлагаются в двух вариантах: стандартном и с укороченной полкой);
  • коннекторы для создания Т-образного соединения трёх деталей;
  • коннекторы (точнее наборы коннекторов) для углового соединения и коннекторы (наборы) для соединения 4 или даже 5 элементов;
  • коннекторы для крепления раскосов.

Всё эти разновидности, как правило, защищены патентом и предлагаются в широком диапазоне типоразмеров (от 3,5х3,5” 8,0x12,0”). Выбрать необходимые коннекторы, а также сопутствующие им металлические штифты по каталогу и затем заказать можно даже по интернету. Пример такого рыночного предложения посмотреть, например, ТУТ.

Вариант-2.

Во вторую группу мы включили пластинчатые элементы, изготавливаемые из листовой стали различной толщины. С деревянными элементами такие коннекторы скрепляются болтами или «глухарями». Предлагаются они как по одиночке, так и в виде наборов.

Обратите внимание: Анкерные крепления на основе химических связей и химические анкера BIT™..

Можно подобрать, как готовые наборы необходимого размера, так и изготовить набор под заказ.

Следует отметить, что в этом варианте предлагаются коннекторы как самой простой формы, так и имеющие определенный дизайн, о красоте и затейливости которого можно судить по этим фотографиям.

Вариант-3.

В эту группу мы включили, так скажем, полуобъёмные соединительные элементы. Изготавливаются они также из листовой стали, но отличаются от предыдущей группы тем, что имеют отогнутые полки, либо изогнуты в форме буквы П.

Вариант 4.

Сюда мы отнесли достаточно сложные объёмные элементы, изготовленные не только методом гнутья, но и сварки. Небезинтересно, что купить такие элементы можно не только в специализированных фирмах (в том числе через интернет), но и в строительных супермаркетах сети Леруа Мерлен (например, во Франции они продаются под заказ, срок выполнения которого 4-5 дней). В России та же сеть супермаркетов продажей подобных элементов не занимается, что, видимо, объясняется отсутствием широкого спроса.

В этой группе в первую очередь следует обратить внимание на так называемые «подпятники» - элементы, с помощью которых опорные стойки-колонны крепятся к основанию. И дело даже не в том, что применение таких коннекторов в разы ускоряет процесс сборки. С их помощью просто и быстро решается сама проблема закрепления стоек к основанию. И, значит, пригодиться они могут не только при строительстве домов по технологии Timber Frame.

Ко всему сказанному просто нельзя не добавить, что в технологии Timber Frame with metal существует и ещё одно весьма оригинальное направление – в котором используются не только металлические коннекторы, но и стальные затяжки ферм, подкосы и раскосы. Но это, пожалуй, уже тема для совсем другого разговора.

PS.

Вы думаете на этом желание усовершенствовать технологию Timber Frame сторонников революционных преобразований в деревянном домостроении иссякло? Как бы не так. Взгляните на эти фото и Вы сами всё поймёте.

?.?.?. – порядковый номер статьи в рубрикаторе сайта

Хотите регулярно читать интересные статьи на тему деревянной архитектуры и строительства - подписывайтесь на наш сайт на zen.yandex.ru, а так же на платформе ЯРУС - https://yarus.ru/feed/19291

#timder frame #строительство #технологичя строительства #строительство дома #каркасная технология #методы строительства #растущий дом #металлические коннекторы

Больше интересных статей здесь: Стройка.

Источник статьи: Технология Timber Frame: Часть 11 - Разновидности металлических соединительных элементов.