Уфф - форменная чушь. Не сама конструкция, а термин

Фундамент - это прежде всего несущая конструкция. И с этой точки зрения никакой финскости в т.н. "утепленном финском фундаменте". Это просто ленточный фундамент, к которому примыкает пол по грунту - такое сочетание возникло раньше, чем Финляндия обрела независимость. И если в "шведской" плите соединение плиты пола с незаглубленной лентой да еще и в несъемной опалубке с натяжкой можно охарактеризовать как национальную особенность (которая, вопреки расхожему мнению, скорее накладывает ограничения, чем является конструктивным преимуществом), то в попытке через название придать "заграничного лоска" до предела банальной конструкции ничего, кроме комплекса провинциала разглядеть невозможно.

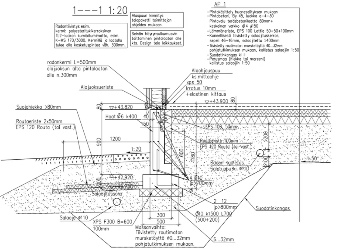
Да, эта банальная несущая конструкция небанально обкладывается утеплителем. Хотя, как посмотреть.... Утепление пола по грунту давно откровением не является, утепление под отмосткой для предотвращения пучения - тоже, причем в "финском" варианте оно выполнено не очень эффективно так как допускает "мостик холода":

...

Обратите внимание: Конструкция беседки.

которого бы не было при наружном утеплении цокольной стенки:

... однако финны (или кто там себя за них выдавал) по каким-то соображениям пошли на утепление цокольной стенки изнутри. Думаю, соображения здесь такие:

1. Поверхность цокольной стенки уже используется как финишное и при этом вандалоустойчивое покрытие:

...в то время как при утеплении снаружи утеплитель надо дополнительно чем то закрывать

2. Не знаю, что было первее - желание утеплить цокольную стенку изнутри или же желание выполнить вот такой, судя по всему, весьма эффективный терморазрыв:

... который эффективен только при использовании дополнительного навесного слоя утепления с внутренней стороны каркасной стены (ну, может быть еще с газобетонной кладкой, консольно свисающей с цоколя также с внутренней стороны)

Таким образом, УФФ - это весьма "нишевое" решение по утеплению ленточного фундамента и цокольной части здания, "завязанное" на один из вариантов каркасной стены.

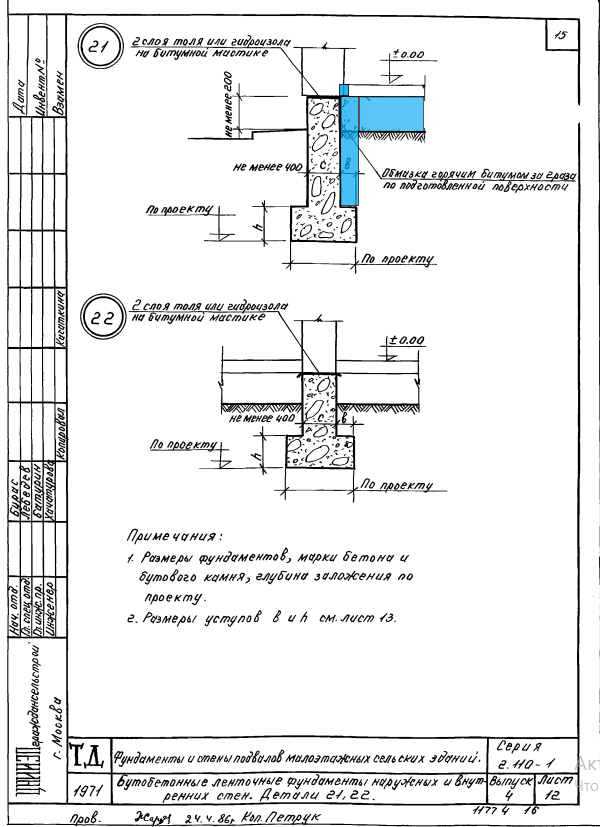
Пожалуйста, превращаем "дедовский" фундамент в "финский" (вариант для непучинистых грунтов) безо всякого "идолопоклонничества перед западом"

P.S. И уж совсем нелепо звучит, когда УФФ пытаются называть "Утепленной финской плитой" - по плите пола, которая даже конструктивно не связана с фундаментом?

#строительство дома

#фундамент для дома

#финский фундамент

Больше интересных статей здесь: Стройка.

Источник статьи: Уфф - форменная чушь. Не сама конструкция, а термин.