Проект величественного двухэтажного дома с цокольным этажом - 224 кв.м

Классическая архитектура никогда не теряет своей актуальности. А прекрасный двухэтажном коттедж «Назар» подтверждение этому. Краснокирпичные эркеры, колонны и кованные ограждения балконов придают образу изысканность эстетики.

Этот величественный коттедж готов подарить комфорт каждому члену семьи, состоящей из 4-6 человек.

Площадь дома - 224 кв.м.
Габариты - 12.7 м x 10.3 м.

Ссылка на проект дома «Назар»

Внутреннее пространство – это территория размеренного отдыха и вдохновленной работы, комфорта и уюта.

Цокольный этаж вместил просторный тренажерный зал, прачечную, кладовую и топочную.

Первый этаж – зона совместного отдыха, встреч с друзьями и родственниками.

Обратите внимание: Работа по договорам долевого участия в проектах с разрешением на строительство, полученным до 01.07.2018г..

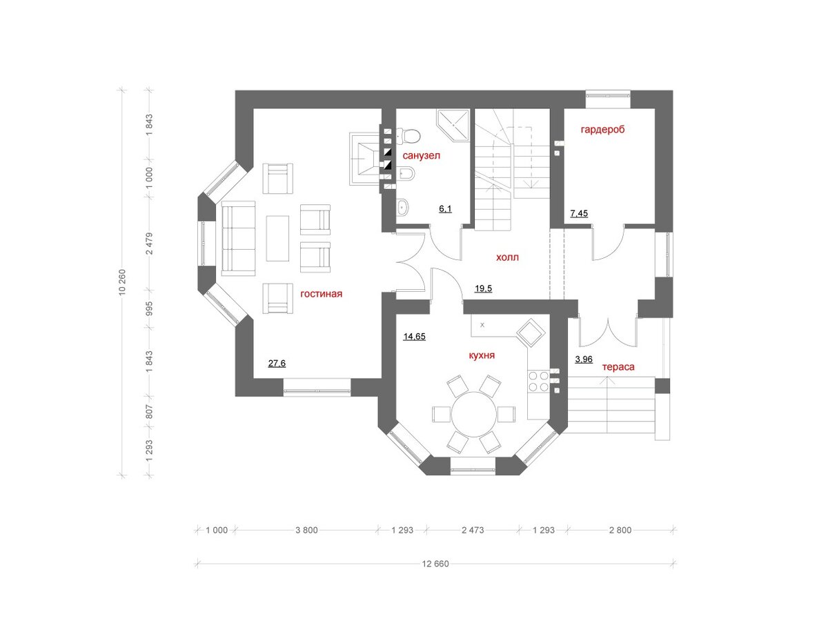
Здесь расположились уютная гостиная с камином, создающим удивительную атмосферу, способствующую расслаблению и абстрагированию от суеты, большая кухня, санузел и гардероб.

На втором этаже расположились три спальни, кабинет и санузел.

⭐Чтобы узнать стоимость проекта и стоимость строительства дома, а также более подробные его характеристики проходите по ссылке => проект "Назар". Переходите на сайт, оставляйте заявку или связывайтесь с нашими менеджерами.

⭐ Мы спроектируем и построим «под ключ» дом Вашей мечты! Все Ваши желания будут реализованы!

Предлагаем Вам подборку двухэтажных домов площадью до 250кв.м.

Мы готовы ответить на все Ваши вопросы – пишите в комментариях. Подписывайтесь на наш канал, Инстаграм , Телеграмм канал, у нас много интересных проектов!

С Уважением,
строительно-проектная компания «Стоун Вуд Хаус»

#недвижимость #строительство #дача #загородныйдом #коттедж #ремонт #проектирование #двухэтажныйдом #домподключ #проектдома

Больше интересных статей здесь: Стройка.

Источник статьи: Проект величественного двухэтажного дома с цокольным этажом - 224 кв.м.