Газобетон или каркасник – что лучше?

Проект дома 22-231-1

Эти технологии сегодня самые популярные в России. И порой сделать выбор между ними сложно. Расставим точки на «i» и сравним каркасный и газобетонный дома по главным параметрам👇

💎Прочность

Каркасник, возведенный по всем нормам, прослужит не менее полувека. Срок службы газобетона больше двухсот лет, если не нарушать правила эксплуатации.

☀️Сохранение тепла

Все зависит от утепления, толщины стены и других факторов. В целом, обе постройки - и из газоблока, и каркасная - будут обладать высоким уровнем способности к сохранению тепла. Но газобетон - это моностена, а она всегда надежнее и меньше риск ошибок.

Проект дома 22-231-1

🔥Огнестойкость

Каркасник – горит, газоблок – самый негорючий строительный материал, что подтверждается требованиями и положениями государственного стандарта.

💪 Безопасность

В плане безопасности для здоровья и отсутствия вредных токсинов дом из газобетона сильно опережает каркасник. Газобетон на втором месте после древесины по экологичности. Каркасные постройки вызывают много опасений. Сам деревянный каркас – экологичен, а вот материалы стенового «пирога» часто содержат разную химию.

Планировка первого этажа дома по проекту 22-231-1

🌿Микроклимат

Стены газобетона «дышат», и по характеристикам идентичны дереву.

Обратите внимание: Космические цены на каркасники, простой пример!.

Они поддерживают естественный воздушный баланс. Каркасник без вентсистемы - это по сути абсолютно герметичный парник с  нулевой паропроницаемостью.

⏰ Скорость возведения

Каркасник «под ключ» можно возвести за один сезон. Газобетонный дом реально построить за 7-9 месяцев.

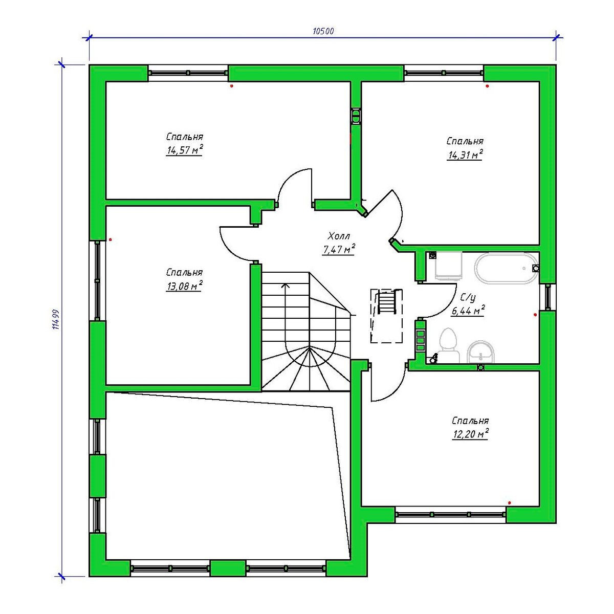
Планировка второго этажа дома по проекту 22-231-1

💸 Цена

В обоих технологиях  возможны вариации материалов. И там, и тут есть недобросовестные подрядчики, которые исключают из базового расчета необходимые элементы или ставят самые дешевые и некачественные материалы. Отсюда и такой разброс цен.

В целом, цены на качественную постройку что каркасного, что каменного дома - аналогичны за исключением цены фундамента. Каркасник можно построить на облегченном винтовом фундаменте, что позволяет сэкономить. Но и качество жизни на деревянном и монолитном перекрытиях разные🤷‍♂️

Нам есть с кем сравнивать. И мы выбираем только монолитные перекрытия👌

На фото — планировки и 3д проекта #22_231_1, как он вам?

Кстати, на строительство дома по этому проекту по обновленным прайсам цена стала еще выгоднее💰

Кому прислать расчет?

Получите каталог и расчет стоимости на три популярных проекта — переходите  в наш 👉 бот-помощник 👈 и он все пришлет👌

❓Какая технология вам ближе? Из чего хотите дом?

#строительство дома #дом из газобетона #каркасный дом #стройка #строительные материалы #строим дом #загородный дом #загородная жизнь #свой дом

Больше интересных статей здесь: Стройка.

Источник статьи: Газобетон или каркасник – что лучше?.